Сдам коммерческую недвижимость в Томске

Коммерческая недвижимость в Томске
Цена 250 р.
Вид недвижимости Производственные помещения
Адрес ул. Причальная
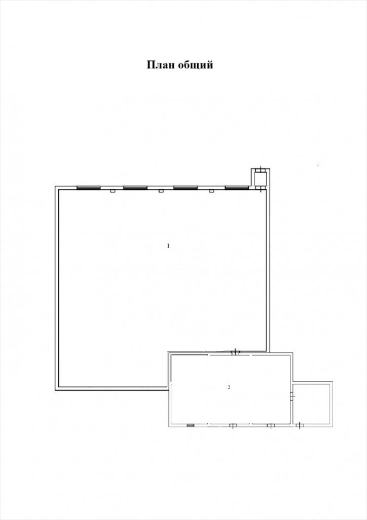
Площадь помещения 750 м2
Аренда помещения под любое производство/склад от собственника!<br /> Помещение может использоваться под любой вид деятельности, пищевое производство, деревообработка, металлообработка, склад, мебельное производство, сборочное производство, фасовка.<br /> Площадь комплекса 1 200 квадратных метров на участке 1 059 квадратных метров.<br /> Состоит из двух отдельных соединённых между собой зданий.<br /> Поэтому рассматриваем как аренду целиком, так и по отдельности:<br /> 1 200 м², 750 м² и 450 м²<br /> Основные характеристики:<br /> Общая площадь территории составляет 8 905 м²<br /> Производственные-складские помещения занимают 1 064 м²<br /> Офисные площади и места общего пользования составляют 236 м²<br /> Помещение подготовлено для организации пищевого производства полного цикла. Соблюдены принципы поточного производства, соответствует действующим требованиям ГОСТа, СанПина и требованиям пожарной безопасности<br /> Отделка:<br /> Цеха – кафель, индустриальная напольная плитка, подогреваемые полы<br /> Офисы – современная стандартная<br /> Помещение полностью оснащено оборудованием для производства мясных полуфабрикатов и рассчитано на выпуск готовой продукции до 200 тонн в месяц<br /> Стоимость оборудования обсуждается отдельно (в случае, если оно заинтересует нового собственника) и не входит в основную цену<br /> В помещении расположена газовая котельная<br /> Итого: 1 200 м² плoщaдей для paзвития бизнecа<br /> <br /> Имеется газ, центральная канализация, подача воды и электричество мощностью 150 кВт<br /> Высота потолков в производственных цехах — от 3.0 до 6.0 метров<br /> Созданы идеальные условия для приёма, хранения, обработки и подготовки сырья, изготовления, фасовки, хранения и отгрузки готовой продукции<br /> Погрузочные и разгрузочные ворота<br /> Место для отстоя и маневрирования длинномерной техники<br /> Участок освещен и охраняется.<br /> Имеется пропускной режим.<br /> Аренда комплекса<br /> 1 200 м² - 299 999 Р/месяц<br /> 750 м² - 187 500 Р/месяц<br /> 450 м² - 112 500 Р/месяц<br /> Дополнительные платежи - коммунальные расходы.
Объявление № 24018343
Дата подачи:
14 апреля 2026 г. 23:31
Дата обновления:
14 апреля 2026 г. 0:00
Просмотров 1 Хотите продать быстрее?

Продавец
Агентство недвижимости:
Сергей
email: 205.000@mail.ru
Показать номер телефона
Пожаловаться
Комментарии:
Добавить